












Projekt
Variantenstudie, Planung und Ausführung
Ausführung
2012-13
Bauherrschaft
Schweizerische Nationalspende, Bern
Bauleitung
Heinz Aebi Bauleitungen Baumanagement, Zürich
Fotos
Andreas Buschmann, Zürich
Die Liegenschaft an der Ankerstrasse ist seit längerem im Besitz einer privaten Stiftung. Die bauliche Substanz des Hauses ist in gutem Zustand, die Installationen haben aber ihre Lebensdauer erreicht und die Einrichtung der Küchen und Bäder ist in die Jahre gekommen. Dies gilt ebenfalls für die Beläge in diesen Bereichen. Den Wohnungen fehlen Aussenräume und das Dachgeschoss ist nicht ausgebaut.
Die Bauherrschaft wünscht sich einen moderaten Umbau der Liegenschaft. Um die langjährigen und geschätzten Mieter nicht zum Umzug zu zwingen wird eine Sanierung in bewohntem Zustand angestrebt.
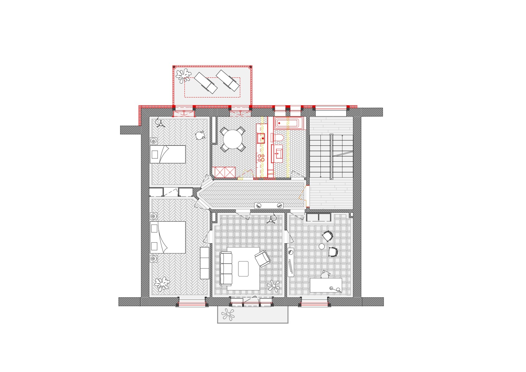
Die Sanierung baut auf den durchwegs qualitätsvollen Grundrissen auf und korrigiert diesen nur im Bereich der Küchen und der Bäder. Die Setzung einer neuen Hauptsteigzone ermöglicht einerseits eine komplette Erneuerung der Installationen und andererseits eine etwas grosszügigere Disposition der Küchen und der etwas beengenden Bäder.
Das Bad erhält neue Apparate und Armaturen und alle Beläge werden erneuert. Die Küche wird mit einer neuen Einbaukombination ergänzt. Bei beiden Räumen wird der Bodenbelag durch den Einsatz von neuen hexagonalen keramischen Platten in unterschiedlichen Farben ersetzt, um auf einfache Weise eine neue adequate Atmosphäre zu erzeugen.
In den strassenseitigen Räumen werden die Radiatoren und Fenster ersetzt; diese Zimmer bleiben aber während den Bauarbeiten bewohnbar. In den hofseitigen Räumen und dem Korridor werden die Oberflächen wo nötig ausgebessert oder neu geschliffen und geölt. Die Ergänzung um einen Balkonanbau in den Hof und die Vergrösserung der entsprechenden Fenster zu Balkontüren erhöht neben dem Mehrwert eines privaten Aussenraumes auch die Grosszügigkeit der hofseitigen Räume. Diese Anpassungen ergänzen sich mit der energetischen Sanierung der hofseitigen Aussenhülle.
Durch den Ausbau des Dachgeschosses wird die bestehende oberste Wohnung zu einer Maisonettewohnung erweitert. Das Dach wird so optimal ausgenützt und die Liegenschaft um eine grosszügige Familienwohnung ergänzt.
Download Projektblatt
Die Bauherrschaft wünscht sich einen moderaten Umbau der Liegenschaft. Um die langjährigen und geschätzten Mieter nicht zum Umzug zu zwingen wird eine Sanierung in bewohntem Zustand angestrebt.
Die Sanierung baut auf den durchwegs qualitätsvollen Grundrissen auf und korrigiert diesen nur im Bereich der Küchen und der Bäder. Die Setzung einer neuen Hauptsteigzone ermöglicht einerseits eine komplette Erneuerung der Installationen und andererseits eine etwas grosszügigere Disposition der Küchen und der etwas beengenden Bäder.
Das Bad erhält neue Apparate und Armaturen und alle Beläge werden erneuert. Die Küche wird mit einer neuen Einbaukombination ergänzt. Bei beiden Räumen wird der Bodenbelag durch den Einsatz von neuen hexagonalen keramischen Platten in unterschiedlichen Farben ersetzt, um auf einfache Weise eine neue adequate Atmosphäre zu erzeugen.
In den strassenseitigen Räumen werden die Radiatoren und Fenster ersetzt; diese Zimmer bleiben aber während den Bauarbeiten bewohnbar. In den hofseitigen Räumen und dem Korridor werden die Oberflächen wo nötig ausgebessert oder neu geschliffen und geölt. Die Ergänzung um einen Balkonanbau in den Hof und die Vergrösserung der entsprechenden Fenster zu Balkontüren erhöht neben dem Mehrwert eines privaten Aussenraumes auch die Grosszügigkeit der hofseitigen Räume. Diese Anpassungen ergänzen sich mit der energetischen Sanierung der hofseitigen Aussenhülle.
Durch den Ausbau des Dachgeschosses wird die bestehende oberste Wohnung zu einer Maisonettewohnung erweitert. Das Dach wird so optimal ausgenützt und die Liegenschaft um eine grosszügige Familienwohnung ergänzt.
Download Projektblatt